地板看着都一样,但不同铺设方法价差好几倍,一不小心就被坑了!
这是一篇扫盲文~,或许我们在看各种装修案例的时候,看到别人家铺地板时,有的家里用了龙骨,有的没用,有的在地板下还铺了“毛
这是一篇扫盲文~,或许我们在看各种装修案例的时候,看到别人家铺地板时,有的家里用了龙骨,有的没用,有的在地板下还铺了“毛地板”,那到底地板的铺设方式有哪些?各铺设方式适合哪些种类的地板,各有什么特点呢?
木地板的铺设有四种方式
1. 悬浮铺设法
这是目前非常流行的铺设方式,在地面平整、干燥、干净的情况下,铺设地垫材料,然后在地垫上铺装地板,凹槽对墙,地板与墙之间放入木楔,留伸缩缝(每种铺设方法都要留伸缩缝,下不赘述),约8-12mm,先预铺(按颜色深浅排列,避免色差,同样是几乎每种铺设方式都需要预铺),再正式一块块铺装。
地垫材料通常是3mm的带塑膜的泡沫垫或约10mm厚的铺垫宝,地垫不重叠,接口用胶带塑封。也有用9-18mm厚的多层胶合板作地垫的,用钉子固定在地面,板与板之间留3-6mm缝隙,同样胶带封口。
地垫下方可铺防潮膜,防潮膜重叠100mm。
适用悬浮铺设法的地板,一般为强化木地板(普遍适用悬浮法)和实木复合地板(适合多种铺装方式)。
☛优缺点:
铺设过程简单,工期短,易于保养、维修和更换,地板还可二次使用,不易起拱,不易发生瓦片状变形。缺点是防潮性不好,所以实木地板一般不用这种铺装方式,而强化和复合地板因有防潮处理,所以可以这样铺。
2. 龙骨铺设法
这是最传统的地板铺设方式。在地面等距离铺上龙骨,用钉子固定,然后在龙骨上铺设地板,用地板钉固定(先在龙骨上铺防潮膜,再铺地板的,防潮效果会更好)。
龙骨材料最常用的是木龙骨(常为落叶松),其他有塑料龙骨、铝合金龙骨等。
龙骨铺设法适用于实木地板(木龙骨、塑料龙骨和铝合金龙骨都可用)和复合地板(仅适用于木龙骨),但其实只要地板的抗弯强度够,都可以用龙骨铺设法。
☛优缺点:
有对地面找平的作用,对地板的防潮保护作用很强(对低层住户、潮湿地区很适用),脚感好,方便维修,但工期略长,损失空间高度,地板无法重复使用,在一段时间后,龙骨可能发生收缩,地面产生异响。
3. 直接粘贴铺设法
将地板直接粘贴在十分干燥、干净、平整的地面上就是直接粘贴铺设法,它对地面要求很高。在国家推荐标准GB/T20238-2006中,第6.1.4.1条 软木地板铺装技术要求 中,对直接粘贴法的铺设过程描述是:铺装前准备→地面面层检测与处理→涂界面剂→自流平处理→精磨地面→软木地板铺装→踢脚线安装,可见此法对地面的要求有多高。
这种方法适用于长度在350mm以下的实木及软木地板的铺设,因为对于同样不平整的地面,木龙骨找平的费用比自流平找平的低,所以实木地板很少用此法,而拼花地板与软木地板用此法铺设最佳。
☛优缺点:
粘贴快速,但对地面要求高,且容易发生起翘现象。
4. 毛地板龙骨铺设法
这种铺设方式各种地板都可以用,与龙骨法不同的是,它在龙骨上铺一层毛地板,再以悬浮式铺设法等把各种地板铺在毛地板上,防潮能力更好,脚感也更舒适、柔软。
引用GB/T20238-2006中对毛地板的定义:
毛地板龙骨铺设法对很多地板都适用,实木地板、复合地板、强化地板、软木地板都可用。
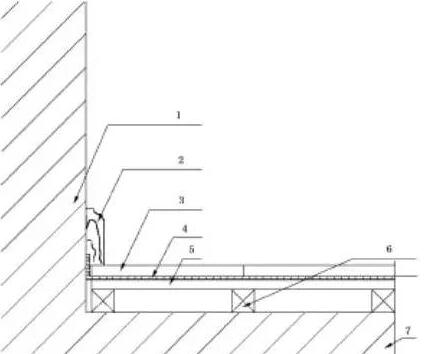
1.墙体 2.踢脚板 3.地板 4.防潮膜 5.毛地板 6.木龙骨 7.地面基础
▲实木地板铺装结构图
☛优缺点:
防潮性好,脚感舒适,但对层高的损耗最多,成本也较高。
铺地板的四种方式就是这样了,或许你关心各种方法的用胶量是怎样的?往下瞧
铺地板要用胶吗?
关于每种方法的用胶量,咱们参考一下国家推荐标准《木质地板铺装、验收和使用规范》GB/T20238-2006。规范中,龙骨法的整个铺装过程没有提到用胶,在主要材料质量要求中 要求胶粘剂须符合相关规定(这一条规定是每种铺设方式都需要满足的)↓↓↓
在讲强化地板和复合地板的悬浮铺装法时,除了对主要材料质量有上述要求外,在其施工过程中,还有一条:
▲悬浮法的铺设过程,规范中说“如需”用胶
so,我们是不是能得出,用龙骨法和悬浮法铺地板,是可以不用胶的?
是的,现在很多地板采用锁扣结构,在榫头和槽口进行了特殊防水处理,安装时不需要用地板胶,但这对地面的平整度要求很高,地板底层每米仅允许1.5mm的不平度。
但是,有些平口地板、侧面没做防水处理的地板,就需要在侧面涂胶了。涂胶可以防潮,隔绝水汽,还能让地板连接更紧密,减少胶板分离和地板硬化现象,延长寿命~
▲某地板 对6面都有做防水处理 图源:jd.com
地采暖用木质地板铺装
同样在GB/T20238-2006中,当地面有地暖时,地采暖用地板有两种地板铺装方式:悬浮法和直接粘贴铺设法。与在正常地面铺装的差别不大,悬浮法的过程为:铺防潮膜→铺地垫→铺地板,防潮膜是必须要铺的,胶是要用的;而直接粘贴法,没有涂界面剂和做自流平、精磨地面的过程,直接上胶粘地板就行了。
▲地采暖用地板-悬浮法 地板铺装过程要用胶。
总结一下:
实木地板一般用龙骨法和毛地板龙骨法铺设,强化地板和复合地板通常用悬浮法,软木地板和拼花地板最适合用直接粘贴法。当地面有地暖设施时,一般用悬浮法或直接粘贴法将强化或复合地板安装在地面。
最后,关于安装的 辅材和人工费用问题,一般品牌方都会提供安装服务,直接用就行了~~
延伸阅读:三分地板,七分安装——木地板铺装大全!
百科热门搜索词
相关木业资讯推荐
最新木业资讯推荐
-
1111100
-
1101002
-
1071546
-
1070912
-
2090984
-
2087716
-
2078588
-
2076746
- 11-24移动式树枝碎枝机桑树枝葡萄枝粉碎机油电两用
- 11-17国产黑胡桃木板材价格多少一方
- 11-16BWD-3K130干式变压器温度控制器
- 11-14日本阀天VENN蒸汽疏水阀AK1H/2H原装正品 上海
- 11-08桥架一体成型 材质有镀锌不锈钢防火铝合金
- 12-11柚木木材价格行情分析最新报价
- 12-11奥坎原木板材最新价格是多少钱
- 11-19落叶松价格走势最新分析
- 11-19欧洲枫木价格行情走势分析
- 11-19桦木价格行情走势分析最新
- 12-11求购;自动化原木制板设备
- 11-19求购优质国产白蜡木
- 11-17求购:加拿大铁杉木
- 11-11求购:白樺木原木
- 11-01长期求购核桃木
- 11-04国产黑胡桃烘干板材价格多少
- 11-04国产黑胡桃烘干板材价格多少钱
- 05-09凭祥龙之涵新中式缅甸花梨沙发报价是多少
- 05-06凭祥龙之涵缅甸花梨木躺椅子贵不贵
- 04-16河南永晟蒸煮核桃木烘干板材价格
- 11-11国产黑胡桃烘干板材有哪些特点呢
- 11-05国产黑胡桃木阴干好还是烘干好呢?
- 11-04国产黑胡桃烘干板优点和缺点是什么?
- 11-03国产黑胡桃木阴干好还是烘干好
- 11-03临颍莱美黑胡桃实木烘干板材好不好用
- 11-08国产黑胡桃木和北美黑胡桃有什么区别
- 06-08巴花是什么木材
- 06-07乌木是什么木头?为什么说家有黄金万两,不如乌木一方
- 03-31木制托盘的优缺点有哪些
- 03-31木托盘的优缺点分析
- 12-11工业用地出租,腾冲市木材加工厂项目正式启动!
- 12-11广西玉林山心镇打造高端板材产业集群
- 12-02腾冲市木材加工厂项目正式启动!
- 11-19承载型(OSB/2)难燃定向刨花板通过新产品鉴定
- 11-19下都镇开展辖区内木材加工厂安全生产检查
























